低净空桥式起重机 - 产品选型


低净空桥式起重机 - 型号参数
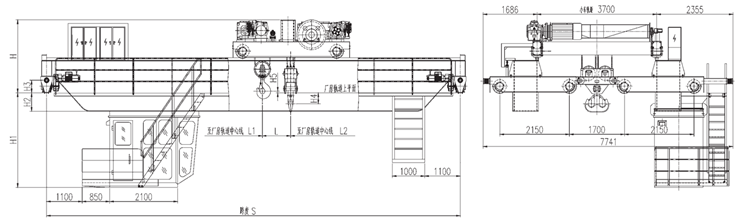
Span 跨度 (m) | 10.5m | 13.5m | 16.5m | 19.5m | 22.5m | 25.5m | 28.5m | 31.5m | |
Lifting capacity 载荷 (t) | Main hook | 80 | |||||||
Auxiliary hook | 20 | ||||||||
Lifting height 起升高度 (m) | Main hook | 28 | |||||||
Auxiliary hook | 30 | ||||||||
Hoisting speed 起升速度 (m/min) | Main hook | 0.15~1.5 | |||||||
Auxiliary hook | 0.63~6.3 | ||||||||
Travel speed 运行速度 (m/min) | Crab travelling | 1.5~15 | |||||||
Crane travelling | 3~30 | ||||||||
Working class 工作级别 | A3,A4 | ||||||||
Installed power 装机功率 (KN) | 57.5 | 61.5 | |||||||
Max. wheel load 最大轮载 (KN) | 231 | 245 | 256 | 266 | 269 | 278 | 288 | 296 | |
Dimensions 尺寸 (mm) | H | 2196 | |||||||
H1 | 2616 | 2618 | 2718 | 2968 | 2970 | 3170 | 2172 | 3472 | |
H2 | 196 | 198 | 298 | 548 | 550 | 750 | 852 | 1052 | |
H3 | 200 | ||||||||
H4 | 330 | ||||||||
H5 | 50 | ||||||||
L | 1080 | ||||||||
L1 | 956 | ||||||||
L2 | 2226 | ||||||||
相关案例
查看更多+
相关产品
查看更多+
