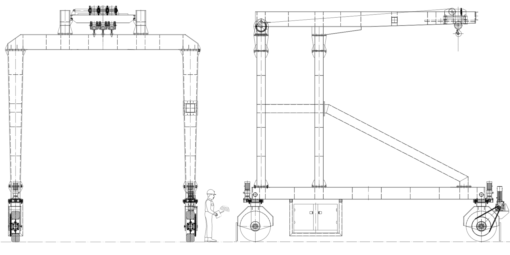
地铁隧道施工用轮胎吊 - 产品选型

地铁隧道施工用轮胎吊 - 型号参数
Load Capacity 载荷 (t) | 10 | 20/5 | 50/10 | 100/50 | 160/30 | |||||||||||||||
Lifting Height 起升高度 (m) | 12 | 9.8/10 | 12/16 | 15/25 | 18/30 | |||||||||||||||
Speed 速度 (m/min) | Crane lifting mechanism 起重机起升速度 | 39.56 | 40.1 | 47.12 | 47.12 | 47.3 | 20 | 20 | ||||||||||||
Trolley lifting mechanism 小车运行速度 | 43.7 | 44.6 | 38.5 | 20 | 20 | |||||||||||||||
Rotation Speed 旋转速度 (m/min) | Crane lifting mechanism 起重机起升速度 | 940 | 945 | 712 | 712 | 945 | 725 | 725 | ||||||||||||
Trolley lifting mechanism 小车运行速度 | 908 | 908 | 940 | 725 | 960 | |||||||||||||||
Span 跨度(m) | 18 | 22 | 26 | 30 | 35 | 22 | 30 | 30 | 35 | 22 | 26 | 30 | 35 | 40 | 22 | 26 | 30 | 35 | 40 | |
Max. wheel pressure 最大轮压(KN) | 235 | 259 | 275 | 316 | 325 | 275 | 285 | 413 | 500 | 268 | 294 | 325 | 355 | 400 | 466 | 498 | 573 | 580 | 605 | |
相关案例
查看更多+
相关产品
查看更多+
