垃圾抓斗桥式起重机 - 产品选型


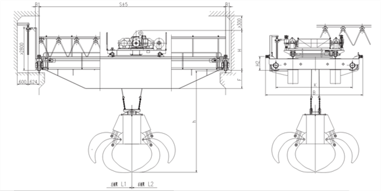
垃圾抓斗桥式起重机 - 型号参数
Productivity 生产率 (t/d) | 800~1000 | 1000~1200 | 1200~1500 | ||||||||||||
Cap 载荷(t) | 8 | 10 | 12.5 | ||||||||||||
Volume of Grab 抓取量 (m³) | 5 | 6.3 | 8 | ||||||||||||
Span 跨度 (m) | 22.5 | 25.5 | 28.5 | 31.5 | 19.5 | 22.5 | 25.5 | 28.5 | 31.5 | 19.5 | 22.5 | 25.5 | 28.5 | 31.5 | |
Lifting Height 起升高度 (m) | 34 | 36 | 36 | ||||||||||||
Main Dimensions 主要尺寸 (mm)
| H | 2300 | 2375 | 2550 | |||||||||||
B | 5724 | 5724 | 5875 | ||||||||||||
K | 2500 | 2500 | 2650 | ||||||||||||
B1 | 230 | 230 | 230 | ||||||||||||
F | 618 | 718 | 818 | 968 | 643 | 743 | 843 | 845 | 995 | 575 | 655 | 757 | 907 | 1057 | |
Max. Wheel Load 最大轮载 (KN) | 117 | 125 | 134 | 141 | 136 | 143 | 151 | 162 | 170 | 155 | 165 | 175 | 185 | 195 | |
Total Power 总功率 (KW) | 106 | 135 | 190 | ||||||||||||
相关案例
查看更多+
相关产品
查看更多+
