绝缘桥式起重机 - 产品选型


绝缘桥式起重机 - 型号参数
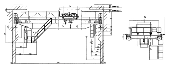
Lifting Weight 载荷 (t) | 16/3.2 | 20/5 | |||||||||||||||
Span 跨度 (m) | 10.5 | 13.5 | 16.5 | 19.5 | 22.5 | 25.5 | 28.5 | 31.5 | 10.5 | 13.5 | 16.5 | 19.5 | 22.5 | 25.5 | 28.5 | 31.5 | |
Max Lifting Height 最大起升高度 (m) | Main 主钩 | 16 | 12 | ||||||||||||||
Aux 副钩 | 18 | 14 | |||||||||||||||
Working class 工作级别 | A6 | ||||||||||||||||
Speed 速度 (m/min) | Main lift 主钩起升 | 10.7 | 9.8 | ||||||||||||||
Aux lift 副钩起升 | 14.6 | 15.5 | |||||||||||||||
Main size 主要尺寸 (mm) | H | 2095 | 2097 | 2187 | 2185 | 2097 | 2099 | 2189 | |||||||||
H1 | 790 | 880 | 790 | 880 | |||||||||||||
H2 | 80 | 180 | 240 | 390 | 540 | 690 | 840 | 80 | 84 | 184 | 244 | 392 | 542 | 692 | 842 | ||
H3 | 2570 | 2550 | 2620 | 2770 | 2920 | 3070 | 3220 | 2570 | 2574 | 2554 | 2624 | 2772 | 2922 | 3072 | 3222 | ||
H4 | 1527 | 1525 | 1435 | 1437 | 1461 | 1459 | 1369 | ||||||||||
H5 | 1000 | 596 | |||||||||||||||
h | 820 | ||||||||||||||||
k | 2000 | ||||||||||||||||
b | 230 | 260 | 230 | 260 | |||||||||||||
S1 | 1040 | 1030 | |||||||||||||||
S2 | 1850 | 1900 | |||||||||||||||
S3 | 1500 | 1450 | |||||||||||||||
S4 | 2310 | 2320 | |||||||||||||||
Weight 自重 (t) | Crab | 6.592 | 8.64 | ||||||||||||||
Total weight | 21 | 23 | 25 | 29 | 32 | 36 | 40 | 44 | 22 | 24 | 27 | 31 | 34 | 39 | 43 | 46 | |
Max. wheel pressure 最大轮压 (KN) | 155 | 164 | 173 | 194 | 203 | 214 | 223 | 232 | 177 | 188 | 199 | 221 | 233 | 243 | 255 | 265 | |
Power source 功率 | 3-Phase A.C 50Hz 380v | ||||||||||||||||
相关案例
查看更多+
相关产品
查看更多+
